 
                    多缸液壓圓錐破碎機是引進德國新技術而開發的具有世界先進水平的高能破碎設備。是通過采用粒間層壓原理設計的特殊破碎腔及與之相匹配的轉速,取代傳統的單顆粒破碎原理,實現對物料的選擇性破碎,破碎粒度均勻。以下為大家介紹多缸液壓圓錐破碎機的工作流程。
	 
雙向過鐵釋放液壓缸能夠讓鐵塊順利通過破碎腔,并且在發生過鐵及瞬時悶車的情況下,能液壓起頂,自動排料,避免了彈簧圓錐破碎機需要停機維護的操作。破碎腔體采用高性能非接觸式迷宮密封件,提高了阻擋粉塵的可靠性,降低了鐵污染和設備的磨損周期,加上機身攜帶的特殊稀油潤滑系統,大大提高了設備使用壽命。
	 
 
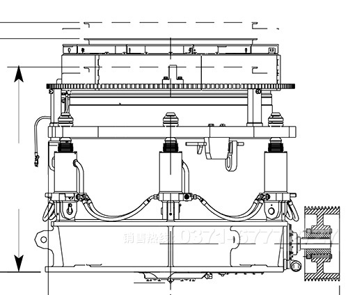
多缸液壓圓錐破碎機工作時,是由電動機的旋轉通過皮帶輪或聯軸器、多缸液壓圓錐破碎機傳動軸和圓錐破碎機圓錐部在偏心套的迫動下繞一周固定點作旋擺運動。從而使破碎圓錐的破碎壁時而靠近又時而離開固裝在調整套上的軋臼壁表面,使礦石在破碎腔內不斷受到沖擊,擠壓和彎曲作用而實現礦石的破碎。
	 
另外,設備的電動機通過傘齒輪驅動偏心套轉動,使破碎錐作旋擺運動。破碎錐時而靠近又時而離開固定錐,完成破碎和排料。支撐套與架體連接處靠彈簧壓緊,當破碎機內落入金屬塊等不可破碎物體時,彈簧即產生壓縮變形,排出異物,實現保險,防止機器損壞。
	 
 
在破碎過程中,如果遇到不可破碎物料進入內或其它因素,使機器超載時。設備此時,可實現保險系統實現保險,當排礦口增大。異物從多缸液壓圓錐破碎機破碎腔排出,如異物卡在排礦石可使用清腔系統,使排礦繼續增大,使異物排出完全多缸液壓圓錐破碎機破碎腔。同時,機器的排礦口自動復位,恢復正常工作。
	 
 
靠譜設備去哪買呢?強烈推薦您來紅星機器看一看,可在線留言預約來廠參觀考察!
 
             
                今日已有15人留言享受優惠補貼
 
                    
                 
                    
                 
                    
                